Название окна

Содержание всплывающего окна

Название окна

Содержание всплывающего окна

MS AER
Locations of visitors to this page
Проектирование
Проектирование

Супермаркет

a

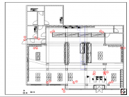
Комплексное решение по системе охранного видеонаблюдения и автоматизации торговли.

 

 

 

 

 

a a a
Трехмерная модель здания Монтажный чертеж Монтажный чертеж
a a a a
a a a a
Виды с камер наблюдения
НПО «Восток»
Республика Казахстан, 050057 Алматы
ул. Сатпаева 36, кв. 4 (уг.ул. Ауэзова)
Тел./факс:+7 (727) 274-2190
 +7 (727) 328-6332
Моб.тел.:+7 (701) 1111-682